洛陽千島裝飾微信客服
掃描洛陽千島裝飾公司二維碼添加好友可贈送免費驗房服務、免費出方案
來源:http://www.czxinqidian.cn ?? 發布時間:2015-07-08 ?? 作者:洛陽千島裝飾公司
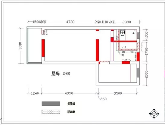
墻體改建圖

一般設計師用斜線表現拆除的墻體,實心的粗線條表示新砌的墻體,這樣一般人都能看得出來墻體的改動了。值得注意的是,墻體的改動要參照原始的土建圖,承重墻一般都是不能隨意改動的。現在很多新房都是全框架結構,內墻的拆除還是比較安全的。很多人在裝修的時候都喜歡將陽臺打通,這個也不要忽視承重墻,具體可以查閱洛陽裝修格局改造勿擾承重墻。